
Plattegrond

Indeling gebouw beganegrond:
Als straks het Buurthuis er staat kunnen inwoners van de Hoven gebruik maken van:
- Huiskamer – dagelijks geopend
- Multifunctionele ruimte voor groepsactiviteiten
- Keuken – o.a. voor samen koken
- Kleedkamers t.b.v. de sport
- Vergaderruimtes – keuze uit meerdere mogelijkheden
- Toiletruimtes
- Berging / opslagruimte
- EHBO/sportverzorgingsruimte
- Kleedkamers scheidsrechters/leiders
- Berging t.b.v. de bar en keuken
- Entree met aparte ingang voor sport
- Gang naar de sportruimtes
- Terras
- Gang naar diverse ruimtes
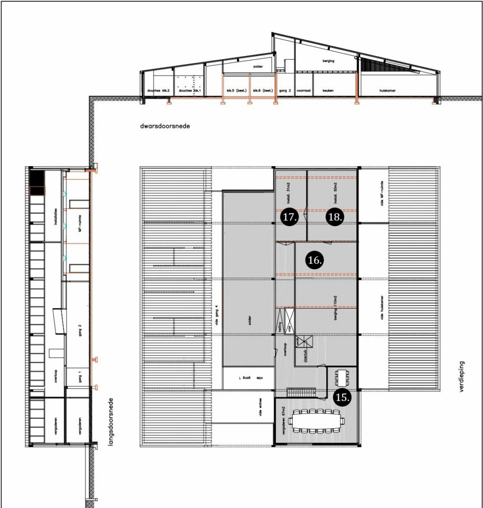
Indeling gebouw 1e verdieping:
- Spreekkamer
- Berging
- Machinekamer
- Werkplaats
Voor commercieel gebruik kan er een ruimte worden gehuurd.
Keuze uit een ruimte voor 2 tot 100 personen. Beamer en projectieschermen zijn aanwezig.
